公司动态

公司动态

公司动态 文化动态
【大景固装】精细化管理·标准化生产

  8388607次

广西凯发k8官网装饰集团有限公司

 2018-11-09

装修固装配套小知识

装修固装配套一般是指固定于墙壁的,不可拆卸移动的家具或饰面板(护墙板),具有不可移动的特点。


装修固装配套原来一般由装修公司负责现场施工制作,但是现场施工缺点很多:制作质量不佳,有害物对环境污染严重,施工噪音大影响居民生活与工作,还有不可拆卸很难维修保养。


后来,装修公司渐渐通过外包工厂加工固装配套,工厂根据设计图纸及技术要求在工厂进行标准化生产,再运到现场拼接组装成型。


目前主要运用于酒店、会所、别墅及高端写字楼方面。


大景公司拥有自主研发中心和生产基地,占地面积12000多平方米;基于先进的理念、专业的技术团队,开启装配式装修固装配套设计、生产、安装,将现场装修工期缩短以及污染降到最低。






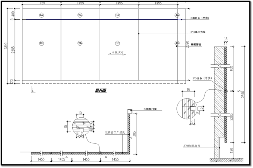
一、深化设计


解决设计与效果、工厂生产与项目现场的脱节问题



1、配备业内优秀的设计深化团队,与甲方设计师及项目部一对一沟通,拆分工艺、结构和形体,确保产品实现设计要求。


2、精准化现场核尺,设计团队派驻现场深化图纸作业,确保产品结构及尺寸与现场基层完美结合。


3、深化过程中结合设计、项目部要求,同时对接工厂生产与安装单位进行技术交底。


4、生产过程中,设计团队跟踪到生产评审;安装过程中,设计团队驻现场指导。









二、精细化生产


把产品做成精品



1、高标准选料,从源头上把控产品质量。


2、利用先进的机台设备 ,零部件标准化加工,控制产品生产过程中质量。


3、所有产品必须进行自身试装,经检验合格后方能进入养生平衡-再入全自动UV油漆线;


4、严格执行ISO9001质量管理体系,确保产品质量。


5、严格控制工序过程、质量以及工艺生产过程。








三、标准化包装


给产品百分百的保护



1、包装前必须进全面试装,点检外观尺寸、门缝五金、油漆效果对色板。


2、标准化包装,防撞、防压、防摩擦,确保运输安全。


3、成品分类,条码管理,确保每一件产品在现场都能送达指定位置。







四、专业化安装


给客户专业化的服务水平



1、专业安装队伍,保证精细化安装质量;


2、专业的成品保护,确保所有见光面保护膜全面覆盖,现场安装后再做二次保护,确保交叉施工过程中产品不受损坏。






装配式装修固装配套设计、生产、安装、售后一体化服务找大景!


大景公司以雄厚的基础实力、务实的发展战略、强大的研发创新能力和高素质的人才队伍,为客户提供更优质的产品和服务。

返回列表 
分享到微信朋友圈 x

打开微信,点击底部的“发现”,使用“扫一扫”即可将网页分享至朋友圈。